homeWelcome, sign in or click here to subscribe.login
     


 

 

Real Estate


Subscriber content preview

December 7, 2023

A rare office project in Columbia City

By BRIAN MILLER
Real Estate Editor

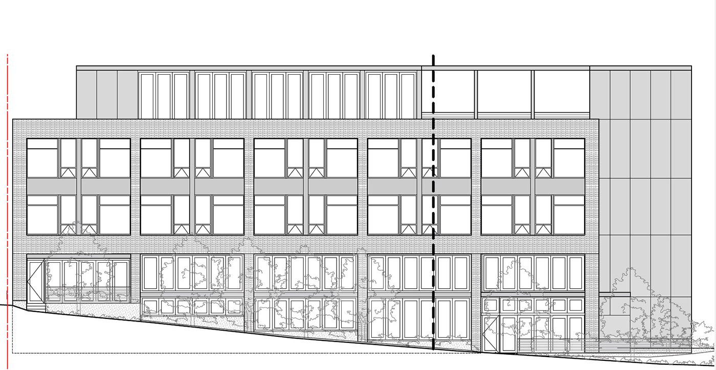
Rendering by Weinstein AU [enlarge]
Looking south, the heavy dotted line indicates the split zoning. The seeming fourth floor is actually a small penthouse level.

We know in advance, quite early in the review process, who'll build an office building planned in Columbia City, at 3829 S. Ferdinand St. Through an LLC, Walsh Construction acquired that corner property last year. (It's now just a surface parking lot.) The building will be the contractor's new Seattle headquarters.


 
. . .


To read this story in full login or purchase a subscription.




Email or user name:
Password:
 
Forgot password? Click here.