homeWelcome, sign in or click here to subscribe.login
     


 

 

Real Estate


Subscriber content preview

August 13, 2025

City nudges SeaTac hotel closer to possible start

By BRIAN MILLER
Real Estate Editor

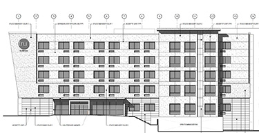
Illustration by JRA Architecture [enlarge]
Tru by Hilton will have 95 rooms.

A possible start date later this year is now being targeted for a BHG Hotels project in SeaTac, a little northeast of Angle Lake. Working with JRA Architecture, a Tru by Hilton is planned at 18820 46th Ave. S. It's to have five stories and 95 rooms.


 
. . .


To read this story in full login or purchase a subscription.




Email or user name:
Password:
 
Forgot password? Click here.